
Фильтр ФГГ-700
цена от
1 461 600 руб.
- Исполнение – горизонтальное
- Номинальный диаметр DN – 700 мм
- Номинальное давление PN – до 10,0 МПа
- Тонкость фильтрации – 4, 8, 12, 16 или 25 мм
- Максимальная производительность – 2500 м³/ч
- Материал корпуса – 09Г2С / 12Х18Н10Т / другая сталь
- Блочное исполнение – опционально
- Теплоизоляция – опционально
- Комплектация КИП, ЗРА – опционально
- Резервные фильтрующие элементы – опционально
Фильтр для НПС ФГГ-700 (DN 700, 2500 м³/ч) предназначен для работы на магистральных нефтепроводах и нефтебазах с повышенными требованиями к чистоте продукта. Модель эффективно удаляет частицы размером от 4 мм, защищая насосы и клапаны от абразивного износа. Внутренний диаметр корпуса 1200 мм и длина позволяют обрабатывать до 2500 м³/ч без снижения давления.
Примеры применения нефтяного фильтра ФГГ-200
- Подземные хранилища нефти: Очистка сырья перед закачкой в пласт.
- Нефтехимические комбинаты: Защита трубопроводов с каталитическими смесями.
- Морские платформы: Фильтрация нефти с высоким содержанием песка и солей.
Особенности горизонтальных фильтров ФГГ-700
- Корпус из нержавеющей стали: Марка 12Х18Н10Т для агрессивных сред с сероводородом.
- Система аварийного сброса: Автоматический перепускной клапан сбросит давление при засоре.
- Эргономичный доступ: Поворотный механизм затвора позволяет обслуживать фильтр без спецтехники.
Технические параметры фильтра для нефти ФГГ-700
| Обозначение | Фильтр ФГГ-700 |
| Производительность, м³/ч | 2500 |
| Условное давление, Pу, МПа | 1,6; 2,5; 4,0; 6,3; 8,0 или 10,0 |
| Температура нефти, ℃ | От -15 до +80 |
| Температура нефтепродуктов, ℃ | От -20 до +80 |
| Степень фильтрации, мм | 4, 8, 12, 16 или 25 |
| DN, мм | 700 |
| Dp, мм (внутренний диаметр корпуса) | 1200 |
| L, мм (расстояние от фланца корпуса до кромки осевого патрубка) | 4500 |
| L1, мм (расстояние от оси бокового патрубка) | 1900 |
| H, мм (расстояние от оси ФГГ до опоры) | 1300 |
| L2, мм (расстояние между опорами) | 2500 |
| L3, мм (расстояние до опоры) | 1200 |
| Обозначение | Блочный фильтр ФГГ-700 |
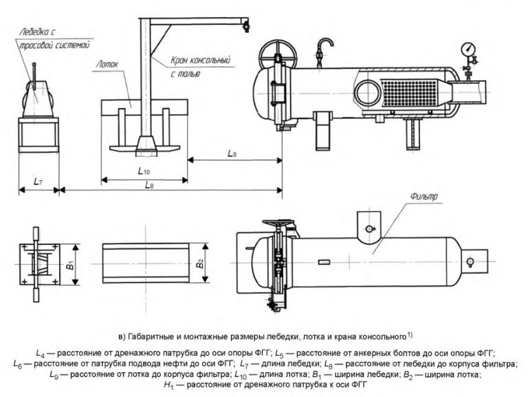
| L7, мм (длина лебедки) | 1700 |
| L8, мм (расстояние от лебедки до корпуса фильтра) | 7840 |
| L9, мм (расстояние от лотка до корпуса фильтра) | 940 |
| L10, мм (длина лотка) | 4200 |
| В2, мм (ширина лотка) | 905 |
| В1, мм (ширина лебедки) | 1200 |
| L5, мм (расстояние от анкерных болтов до оси опоры ФГГ) | 70 |
| L6, мм (расстояние от патрубка подвода нефти до оси ФГГ) | 1050 |
| L4, мм (расстояние от дренажного патрубка к оси опоры) | 1400 |
| Н1, мм (расстояние от дренажного патрубка до оси ФГГ) | 800 |
| Радиус вылета быстроразъемного концевого затвора, мм | 1890 |
| Количество штурвалов быстроразъемного концевого затвора, шт | 2 |
Чертеж фильтра ФГГ-700
Чертеж блочного фильтра ФГГ-700
Преимущества ООО "УЗСК"
- Изготовление корпусов с усиленными опорами для монтажа на неустойчивых грунтах.
- Поставка фильтрующих кассет из износостойкой сетки.
- Шеф-монтажные и пусконаладочные работы.
Расшифровка условного обозначения
Например, фильтр грязеуловитель горизонтальный ФГГ номинальным диаметром DN 700 на номинальное давление PN 6,3 МПа, блочного исполнения, с осевым отводом нефти или нефтепродуктов, с правым расположением патрубка подвода нефти или нефтепродуктов, в сейсмостойком исполнении С по MSK — 64 [10], без теплоизоляции, вид климатического исполнения ХЛ1 по ГОСТ 15150 будет обозначаться следующим образом: ФГГ-700-6,3-Б-0-П-С-ХЛ1.
Заполните форму заказа






